Horizontal Dewatering method
- Horizontal Dewatering drainage makes it possible to lower ground water levels in such a short time that the groundwork for sewer’s, building excavations, cables and pipes can be done in the dry, without any risks in a short space of time.
- It is achieved by special designed trenching machine systems to drain the ground water from the soil. Pumping out the ground water lowers the water table and modifies the subsurface flow pattern. The system can be installed accurately by means of laser depth control.
- The maximum digging depth of our Horizontal Dewatering machine is 5m. If necessary, the width of the trench can be 40cm. Depending on the characteristics of the soil and the requirements that have to be met, the filter pipe can be covered in advance with, nylon sleeves or polypropylene fibers. The trench can also be partly or completely filled with porous materials such as coarse sand, gravel, granules of clay etc. The drain length can be 80 – 100m

Steel Water Tank

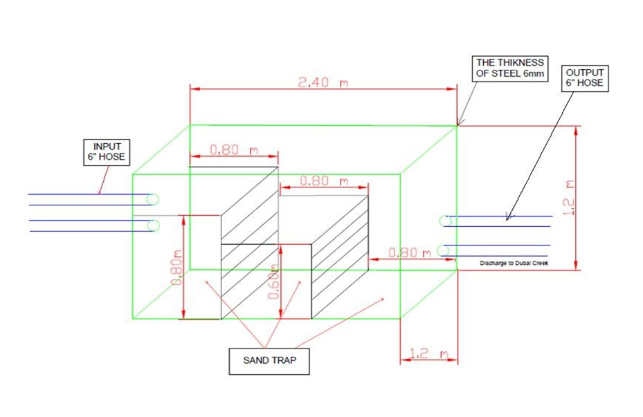
Cross Section of Tank

Settlement Tank Details
- First Section:
In the first compartment of the tank the solid particles get accumulated at the bottom and the water with fine particles passes through the section wall. - Second Section:
In the second compartment of tank the fine and remaining settlements will settle down at the bottom and the water will pass through section wall. - Third Section:
From the final section the water passes through the tank outlet and discharged to the required area.
The settlement tank is divided in to three sections.
Purpuse of using settlement tank
- The solids from the dewatering wells are minerals which contain chemical substances.
- The tank does the job of settling them and avoiding them to get discharged in areas.
- If a color change is observed in the discharge water due to chemical content, necessary precautions should be taken from the systems.
- The solids and the fine particles can be dangerous to mankind and plants if discharged.
- The tank even used to maintain the discharge level, so a standby tank is always kept ready.
- The maximum percentage for the Turbidity should be 40NTU (Nephelometric Turbidity Units).
- The maximum Floating bodies percentage should be NIL (0).
- The maximum Hydrogen base (PH) should be 6-9
- Total Suspended Solids (TSS) percentage should be 0.0025 g/l These percentages should take by continuous laboratory analysis of water samples taken from the settlement tank.
The test result shows
- Materials Tested.
- Percentage of dissolved solids.
- Percentage of suspended solids.
- Floating bodies.
- Turbidity.
- Color.
- Presence of organic and inorganic materials.
Basic Flowchart of work

Dewatering Sequence
- Dewatering Layout 1. System layout, discharge control plan and dewatering details.
- Dewatering Calculation
1. Soil Properties. (radius of influence) 2. Calculation of Discharge. - Settlement Calculation
1. Design Data.
2. Initial stress & Final stress. 3. Final settlement. - Uplift Calculation
1. For safe termination